Hannon Holmes are delighted to offer for sale this excellent first floor apartment located in the heart of Little Lever. Ideally positioned for access to local schools and shops. No Upward Chain and ideal for first time buyers. A key feature of the property is its private own door and street-level entrance, offering direct access with no communal areas or shared hallways. Call our Sales team on 01204 793113 to arrange your viewing.
Misrepresentation Act 1967
These particulars are believed to be correct but their accuracy is not guaranteed nor do they form part of any contract.
For further details on this property please call us on:
01204 793113
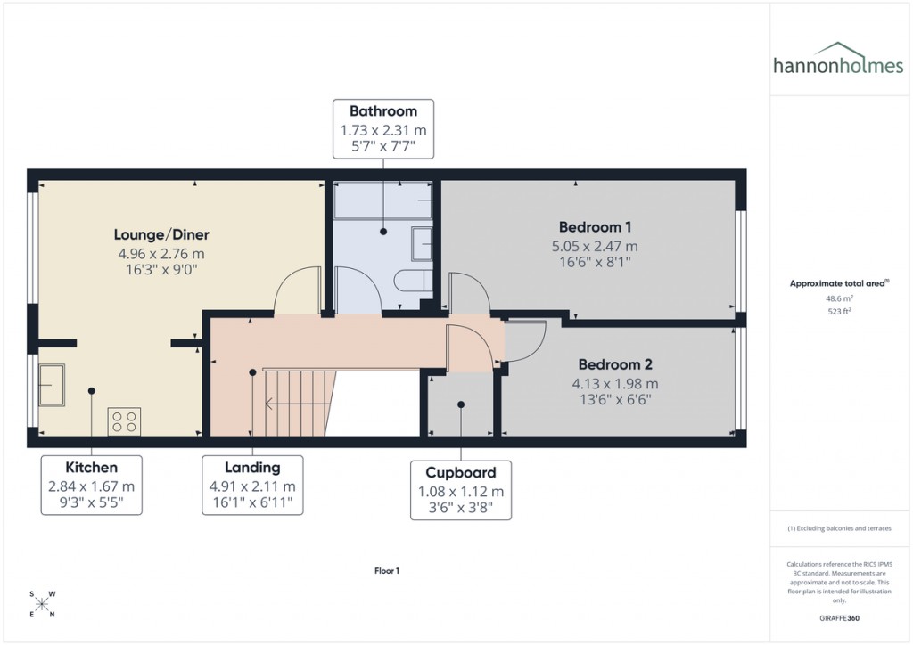
STEPINSIDE The apartment has its own private street-level front entrance, spans two levels, and has no communal or shared areas with other apartments.
Rising up the staircase to the first floor you will find a landing area where you can access the loft and a convenient cupboard.
The open/plan living room/kitchen is located to the front aspect, perfect for accommodating a variety of furnishings. Natural light floods the room through a large double-glazed window.
The room is further complemented by a ceiling light, radiator, a new soft grey fitted carpet flows seamlessly throughout the living room and continues throughout the property.
The kitchen, which features cream high gloss wall and base units with a complimentary worktop and tiled backsplash. The kitchen comes equipped with a free standing gas cooker and hob, a chrome extractor and a stainless steel sink. Under-cabinet and plinth lighting enhance the contemporary feel, while a double-glazed window provides natural light. There is space and plumbing for a washing machine and the boiler is located within the kitchen. The flooring is finished with herringbone plank-effect vinyl for a stylish touch.
Bedroom One is positioned to the rear aspect offering room for a variety of furniture arrangements. It is fitted with the same soft grey carpet, a double-glazed window with a contemporary fitted blind, a radiator and a ceiling light.
The second bedroom also features the soft grey carpet, double-glazed window with fitted blind, radiator and ceiling light, making it a versatile space.
The stylish bathroom is fitted with a bath with a glass shower screen, overhead waterfall shower and handheld chrome shower with glass screen. A wash basin with vanity unit provides essential storage, complemented by a low-level WC. The walls are fully panelled with contemporary white and grey marble-effect PVC cladding, and the room is completed with newly fitted vinyl flooring, an extractor fan and a chrome heated towel rail.
Additional benefits include fully re plastered walls and updated internal doors throughout the apartment.
Outside, residents enjoy access to a private car park.
LOCATION Located on Heywood Street, this property is situated within easy reach of a wide number of amenities, some of which briefly include; Tesco Supermarket, Bradley Fold Garden Centre, Post Office. There are also a number of food outlets and public houses available. There is vast countryside nearby for walking and fishing for all nature lovers. There are excellent Transport links with a nearby bus service to Bolton and Bury and onwards links to Manchester via the Metrolink from Radcliffe and the train station from Bolton. There are plenty of well-regarded Primary Schools, a Secondary School and nursery and after school clubs too, what more could you ask for! Don't delay and miss out on the property, to request a viewing, contact the Sales team at Hannon Holmes on 01204 793113, we would love to arrange a viewing for you.
ADDITIONALINFORMATION To conform with government Anti Money Laundering Regulations 2019, we are required to confirm the identity of all prospective buyers. We use the services of a third party, Thirdfort. There is a nominal charge of £30 + VAT £6.00 Total £36.00 for this** (per person), payable direct to Hannon Holmes Ltd. These fees are non- refundable. **An increased charge may be payable for overseas checks.
Please note, we are unable to issue a memorandum of sale until checks are complete. Please note it is a legal requirement that we obtain verified ID from purchasers before instructing a sale. Please also note we shall require proof of funds before we instruct the sale, together with your instructed solicitors.
Hannon Holmes may refer you to ancillary services including Conveyancing, Surveying and Financial Services, should you require any of these services. Hannon Holmes may receive a referral fee for recommending their services if you do instruct them. You are free to select any provider of legal services, surveying or financial services that you choose and you are under no obligation to use any of the suggested providers.
EPC Rating (TBC)
Council Tax Band A Bolton Council £1506.33 per annum
Leasehold Property
Date : 18 May 1990
Term : 999 years from 18 May 1990
964 years remaining
Rent : £10 per annum
Service charge: £85.48 per month
REFERRALFEES Hannon Holmes may refer you to ancillary services including Conveyancing, Surveying and Financial Services, should you require any of these services. Hannon Holmes may receive a referral fee for recommending their services if you do instruct them. You are free to select any provider of legal services, surveying or financial services that you choose and you are under no obligation to use any of the suggested providers.
PROPERTYPARTICULARSDISCLAIMER Property particulars as supplied by Hannon Holmes Estate Agents are set out as a general outline in accordance with the Property Misdescriptions Act (1991) only for the guidance of intending purchasers or lessees, and do not constitute any part of an offer or contract. Details are given without any responsibility, and any intending purchasers, lessees or third parties should not rely on them as statements or representations of fact, but must satisfy themselves by inspection or otherwise as to the correctness of each of them. We have not carried out a structural survey and the services, appliances and specific fittings have not been tested. All photographs, measurements, floor plans and distances referred to are given as a guide only and should not be relied upon for the purchase of carpets or any other fixtures or fittings. Gardens, roof terraces, balconies and communal gardens as well as tenure and lease details cannot have their accuracy guaranteed for intending purchasers. Lease details, service ground rent (where applicable) are given as a guide only and should be checked and confirmed by your solicitor prior to exchange of contracts. No person in the employment of Hannon Holmes Ltd has any authority to make any representation or warranty whatever in relation to this property. Purchase prices, rents or other prices quoted are correct at the date of publication and, unless otherwise stated, exclusive of VAT. TENURE : The type of tenure has been given to us by the seller. This has not been verified. The Agent has not checked the legal documents to verify the tenure status of the property. The buyer is advised to obtain verification from their Solicitor or Surveyor. For full Property Particulars Disclaimer please visit http://hannonholmes.co.uk/property-particulars-disclaimer.
Fees applying to all new tenancies from 1st June 2019
We may charge a tenant any or all of the following when required:
the rent;
a security deposit with a maximum of 5 weeks rent, or 6 weeks on a property with rent over £50,000 per year;
a holding deposit of no more than one weeks’ rent;
default fee for late payment of rent (after 14 days);
reasonable charges for lost keys or security fobs;
payments associated with contract variation, at £50 or reasonable costs incurred if higher, when requested by the tenant;
payments associated with early termination of the tenancy, when requested by the tenant; and
payments in respect of bills - utilities, communication services, TV licence, council tax and green deal or other energy efficiency charges.
Fees applying to all pre-existing tenancies entered before 1st June 2019
We shall continue to apply the charges within the existing tenancy agreement until 31st May 2020.
During Your Tenancy:
During your tenancy, there are fees that may apply depending on your circumstances and the various options you may select. All charges are inclusive of VAT:
The charges for the above are as follows:
Amendment fee £50.00 (Contract negotiation, amending terms and updating your tenancy agreement during your stay)
Renewal Fee £75.00 (Contract negotiation, amending and updating terms and arranging each further tenancy agreement be it fixed term of periodic. In the case you choose to go onto a periodic tenancy this is a one off payment)
Unpaid Rent / Returned Payments (Pay interest on any amounts of Rent due and in arrears at the rate of £4% above the Bank of England annual base rate calculated on a day to day basis from the date that the same become due until payment in full is made)
Professional cleaning (if required) – (£18.00 per hour with a minimum charge of £36.00 which will be deducted from the security deposit. Only charged when professional cleaning is necessary to return the property to the same condition as at the start of the tenancy)
If you have any questions on our fees, please ask a member of staff