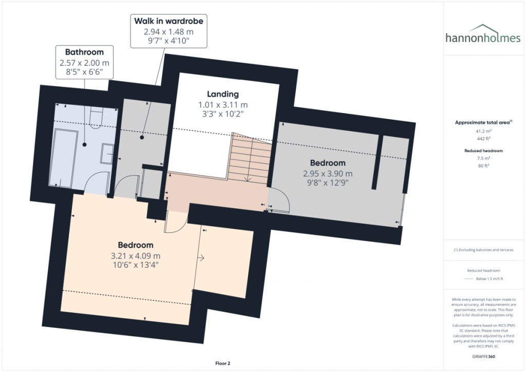
A rare opportunity to own Ladyshore Cottage, a stunning Grade II listed Semi Detached property steeped in charm and character. Ladyshore Cottage offers 6 Bedrooms, 3 Reception Rooms and 4 Bathrooms, all set within ample private grounds and generous garden space ideal for entertaining or simply unwinding. This charming Grade II listed home blends the timeless appeal of period living with the comfort and convenience of contemporary design. Arrange your viewing today! Call the Sales Team on 01204 793113.
Misrepresentation Act 1967
These particulars are believed to be correct but their accuracy is not guaranteed nor do they form part of any contract.
For further details on this property please call us on:
01204 793113
STEPINSIDE Just beyond the front gate lies a world of natural beauty step over the canal and straight into miles upon miles of woodland, riverside trails and cycling paths teeming with wildlife, from deer and badgers to foxes and birds. A quiet lane leads directly to the home's private gated entrance, set on a peaceful no-through road accessible by foot, offering both privacy and charm. With Clifton Marina, the country park, Ringley Woods and the river perfect for fishing all on your doorstep, this is an exceptional home for families who love the outdoors and crave adventure right outside their door. A rare opportunity to own Ladyshore Cottage, a stunning Grade II listed Semi Detached property steeped in charm and character. Ladyshore Cottage offers 6 Bedrooms, 3 Reception Rooms and 4 Bathrooms, all set within ample private grounds and generous garden space ideal for entertaining or simply unwinding. This charming Grade II listed home blends the timeless appeal of period living with the comfort and convenience of contemporary design.
Property Particulars
Local Council: Bolton
Council Tax Band: F (£2,500 per annum)
Tenure: Freehold
________________________________________
General Information
1. Property Type: Semi-detached
2. Construction Material: Other
3. Listed Building: Yes
4. Conservation Area/Area of Outstanding Natural Beauty: No
5. Restrictive Covenants or Restrictions: Yes
6. Rights of Way (Private): Yes
7. Rights of Way (Public): None
8. Flooding in Last 5 Years: No
9. Coastal Erosion: No
10. Mining Activity (Current or Historical): No
________________________________________
Utilities & Services
1. Water Supplier: United Utilities
2. Water Meter: No
3. Electricity Connected: Yes (Supplier: British Gas, Avg. £130/month)
4. Gas Supply: Yes (Connected, Pay As You Go - British Gas, Avg. £100/month)
5. Sewerage Type: Septic Tank
6. Broadband Type Available: Cable
7. Maximum Broadband Speed: Not known
________________________________________
Heating & Energy
1. Boiler: Combi Boiler (Approx. 8 years old)
2. Last Serviced: 20/07/2025
3. Solar Panels: No
________________________________________
Loft Details
1. Loft Boarded: Yes (Partially)
2. Pull-Down Ladder: Yes
3. Insulated: Yes (Fully)
4. Fixed Lighting: Yes
________________________________________
Parking & Access
1. Parking Type: Private Driveway & Garage
2. Parking Charges: None
3. Permit Required: No
________________________________________
Security
1. Property Alarm: Yes (Serviced)
2. CCTV Doorbell: Yes (Not included in sale)
3. CCTV: Yes (Included in sale)
________________________________________
Windows
1. Installation Date: Prior to current ownership
2. Warranty: No
3. FENSA Certificate: No
________________________________________
Other Notes
1. Management/Service Charges: No
2. Structural Changes Made by Current Owner: No
3. Alterations Made by Previous Owner: Yes
4. Trees with Tree Preservation Order (TPO): None known
5. Fire or Structural Hazards Identified: None known
LOCATION Tucked away in a peaceful and private setting, this delightful home offers a true countryside feel yet remains exceptionally well connected to local towns, transport links and essential amenities. Positioned on sought after Ladyshore Road, this property enjoys the perfect balance between tranquil rural living and modern day convenience.
Despite its secluded atmosphere, you're only a short drive from the bustling centres of Bolton and Bury, both of which offer a wide range of shops, restaurants, supermarkets, and services. Closer to home, Little Lever provides everything you need on a day-to-day basis, including a Tesco superstore, independent shops, cafes, and local conveniences. Neighbouring Radcliffe also features an array of amenities and supermarkets within its retail hub.
For commuters, the A666 and M61 are easily accessible, making travel by car straightforward. There are also frequent and reliable bus services within a 10-minute radius, offering routes to Bolton, Bury, and Radcliffe where you can connect to train and Metrolink services for direct access to Manchester and beyond.
If outdoor living is important to you, this location will not disappoint. Ladyshore Woods and the Bolton & Bury Canal are quite literally on your doorstep, offering scenic walks and cycle routes. Just a short walk away is the Meccano Footbridge, where peaceful canal-side trails lead you toward Radcliffe and Stoneclough. Families will also appreciate having Ladyshore Park and its playground just around the corner, perfect for children and outdoor relaxation.
For families, the community is especially appealing. There is a thriving local scene, including a cricket club, bowls club and a range of societies and events that welcome newcomers of all ages. Young families will benefit from the proximity to several well regarded schools, including Mytham, St Matthew's, Masefield, Bowness, and St Teresa's primary schools. Little Lever Secondary School located approximately 30 minutes' walk away was rated Good by Ofsted in 2024. A selection of nurseries and after-school clubs also serve the area, supporting a family friendly lifestyle.
So whether you're enjoying a walk along the canal, heading into the village for your daily essentials, or commuting to Manchester with ease, this property places you in an enviable position to enjoy it all.
ADDITIONALINFORMATION To conform with government Anti Money Laundering Regulations 2019, we are required to confirm the identity of all prospective buyers. We use the services of a third party, Thirdfort. There is a nominal charge of £30 plus VAT for this** (per person), payable direct to Hannon Holmes Ltd. **An increased charge may be payable for overseas checks.
Please note, we are unable to issue a memorandum of sale until checks are complete. Please note it is a legal requirement that we obtain verified ID from purchasers before instructing a sale. Please also note we shall require proof of funds before we instruct the sale, together with your instructed solicitors.
Hannon Holmes may refer you to ancillary services including Conveyancing, Surveying and Financial Services, should you require any of these services. Hannon Holmes may receive a referral fee for recommending their services if you do instruct them. You are free to select any provider of legal services, surveying or financial services that you choose and you are under no obligation to use any of the suggested providers.
EPC D
Council Tax F £3,263.75
Freehold Property
REFERRALFEES Hannon Holmes may refer you to ancillary services including Conveyancing, Surveying and Financial Services, should you require any of these services. Hannon Holmes may receive a referral fee for recommending their services if you do instruct them. You are free to select any provider of legal services, surveying or financial services that you choose and you are under no obligation to use any of the suggested providers.
PROPERTYPARTICULARSDISCLAIMER Property particulars as supplied by Hannon Holmes Estate Agents are set out as a general outline in accordance with the Property Misdescriptions Act (1991) only for the guidance of intending purchasers or lessees, and do not constitute any part of an offer or contract. Details are given without any responsibility, and any intending purchasers, lessees or third parties should not rely on them as statements or representations of fact, but must satisfy themselves by inspection or otherwise as to the correctness of each of them. We have not carried out a structural survey and the services, appliances and specific fittings have not been tested. All photographs, measurements, floor plans and distances referred to are given as a guide only and should not be relied upon for the purchase of carpets or any other fixtures or fittings. Gardens, roof terraces, balconies and communal gardens as well as tenure and lease details cannot have their accuracy guaranteed for intending purchasers. Lease details, service ground rent (where applicable) are given as a guide only and should be checked and confirmed by your solicitor prior to exchange of contracts. No person in the employment of Hannon Holmes Ltd has any authority to make any representation or warranty whatever in relation to this property. Purchase prices, rents or other prices quoted are correct at the date of publication and, unless otherwise stated, exclusive of VAT. TENURE : The type of tenure has been given to us by the seller. This has not been verified. The Agent has not checked the legal documents to verify the tenure status of the property. The buyer is advised to obtain verification from their Solicitor or Surveyor. For full Property Particulars Disclaimer please visit http://hannonholmes.co.uk/property-particulars-disclaimer.
Fees applying to all new tenancies from 1st June 2019
We may charge a tenant any or all of the following when required:
the rent;
a security deposit with a maximum of 5 weeks rent, or 6 weeks on a property with rent over £50,000 per year;
a holding deposit of no more than one weeks’ rent;
default fee for late payment of rent (after 14 days);
reasonable charges for lost keys or security fobs;
payments associated with contract variation, at £50 or reasonable costs incurred if higher, when requested by the tenant;
payments associated with early termination of the tenancy, when requested by the tenant; and
payments in respect of bills - utilities, communication services, TV licence, council tax and green deal or other energy efficiency charges.
Fees applying to all pre-existing tenancies entered before 1st June 2019
We shall continue to apply the charges within the existing tenancy agreement until 31st May 2020.
During Your Tenancy:
During your tenancy, there are fees that may apply depending on your circumstances and the various options you may select. All charges are inclusive of VAT:
The charges for the above are as follows:
Amendment fee £50.00 (Contract negotiation, amending terms and updating your tenancy agreement during your stay)
Renewal Fee £75.00 (Contract negotiation, amending and updating terms and arranging each further tenancy agreement be it fixed term of periodic. In the case you choose to go onto a periodic tenancy this is a one off payment)
Unpaid Rent / Returned Payments (Pay interest on any amounts of Rent due and in arrears at the rate of £4% above the Bank of England annual base rate calculated on a day to day basis from the date that the same become due until payment in full is made)
Professional cleaning (if required) – (£18.00 per hour with a minimum charge of £36.00 which will be deducted from the security deposit. Only charged when professional cleaning is necessary to return the property to the same condition as at the start of the tenancy)
If you have any questions on our fees, please ask a member of staff