This lovely 4 Bedroom Semi-Detached Dormer Bungalow offers spacious living and versatile outdoor areas, all set within a highly sought-after residential location. With excellent transport links, outstanding nearby schools and a low-maintenance garden with a versatile outbuilding, this property is the perfect choice for families. To arrange a viewing or for more information, call our sales team today on 01204 793113.
Misrepresentation Act 1967
These particulars are believed to be correct but their accuracy is not guaranteed nor do they form part of any contract.
For further details on this property please call us on:
01204 793113
STEPINSIDE Situated in a highly desirable residential location, this 4 Bedroom Semi-Detached Bungalow offers an exceptional opportunity for buyers seeking space and comfort. Designed with open plan living and convenience in mind, the property provides generous accommodation and versatile outdoor areas, making it the perfect family home.
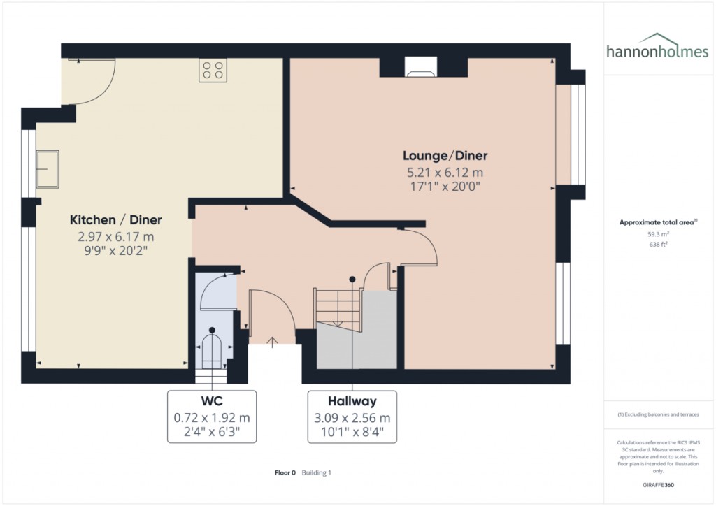
Upon entering, you are welcomed into a bright hallway with a UPVC side door, fitted with Karndean flooring, a double panel radiator and a ceiling light. This inviting entrance sets the scene for the quality and charm found throughout the property. The hallway leads into the ground floor w/c, lounge/diner, kitchen/diner and staircase leading to first floor accommodation.
A convenient ground floor w/c features fully tiled walls and flooring, a white suite, frosted double-glazed window and ceiling light.
The spacious lounge is the true heart of the home. With carpet flooring, two wall lights, two ceiling lights and large double-glazed windows, it offers a bright, relaxing atmosphere. A double panel radiator ensures year-round comfort, making this the ideal space for family time or entertaining guests. The stunning feature fireplace is a real feature to this room. There is plenty of space for living and dining room furnishings of your choice.
The open plan kitchen/diner offers a wooden kitchen with laminate worktops, a Rangemaster cooker with extractor fan, tiled splashback and a stainless steel sink with chrome mixer tap. There is plumbing for a washing machine, space for a dryer and room for a freestanding fridge freezer. Karndean flooring, a double panel radiator, strip lighting, two generous windows and a rear UPVC stable door fills the space with light, creating the perfect hub for family meals and social occasions.
The landing offers access to the first-floor rooms, finished with carpet flooring, a fixed double-glazed window, ceiling light and a loft hatch.
Bedroom One is a peaceful retreat, complete with fitted wardrobes, carpet flooring, ceiling recess spotlights, radiator and a large double-glazed window. A TV wall connection adds extra convenience.
Bedroom Two is equally well-proportioned, featuring fitted wardrobes, carpet flooring, a ceiling light, radiator and a double-glazed window.
Bedroom Three is ideal as a guest room, study, or child's bedroom. It benefits from carpet flooring, a double panel radiator, a double-glazed window, ceiling light and TV wall connection.
The fourth bedroom includes fitted wardrobes, carpet flooring, a single panel radiator and ceiling light. It also houses the combi boiler.
The family bathroom features fully tiled walls, carpet flooring and a three-piece suite. This comprises a P-shaped bath with chrome mixer tap, a chrome power shower with curved glass screen, a white sink with chrome mixer tap, and matching W.C. Additional features include a chrome heated towel radiator, a large wall mirror, ceiling light, frosted double-glazed window with opener and an extractor fan.
The front of the property provides a tarmac driveway for two vehicles, complemented by a stoned area, tarmac running down the side of the home and a low-level brick wall.
The rear garden is designed for easy upkeep and maximum enjoyment, with a flagged patio and raised Indian stone patio offering the perfect settings for outdoor dining or relaxation. A handy outside hosepipe connection and smart concrete panel surround add practicality and style.
A versatile outbuilding, currently used as a garage, comes equipped with electric lighting, two ceiling lights, power and a double-glazed unit. This flexible space could be transformed into a bar, workshop, or entertainment room, offering endless lifestyle possibilities.
LOCATION Situated on Doncaster Close in Little Lever, this property offers convenient access to a variety of facilities. Nearby, you'll find the village centre, which boasts numerous shops, including Tesco Supermarket and the Post Office. Families will appreciate the close proximity to St. Teresa's Primary School and Little Lever Secondary School, making the morning school run a breeze. For outdoor enthusiasts, scenic rural walks leading into Stoneclough are just a short distance away, perfect for dog walking or leisurely strolls in the countryside. The property is well served by a regular bus route that circles the village and connects to Bolton and Bury. Additionally, there are excellent transport links to Manchester via the Metrolink from Radcliffe and the train station at Moses Gate.
ADDITIONALINFORMATION To conform with government Anti Money Laundering Regulations 2019, we are required to confirm the identity of all prospective buyers. We use the services of a third party, Thirdfort. There is a nominal charge of £30 + VAT £6.00 Total £36.00 for this** (per person), payable direct to Hannon Holmes Ltd. These fees are non- refundable. **An increased charge may be payable for overseas checks.
Please note, we are unable to issue a memorandum of sale until checks are complete. Please note it is a legal requirement that we obtain verified ID from purchasers before instructing a sale. Please also note we shall require proof of funds before we instruct the sale, together with your instructed solicitors.
Hannon Holmes may refer you to ancillary services including Conveyancing, Surveying and Financial Services, should you require any of these services. Hannon Holmes may receive a referral fee for recommending their services if you do instruct them. You are free to select any provider of legal services, surveying or financial services that you choose and you are under no obligation to use any of the suggested providers.
Leasehold Property
Term: 999 years (less 3 days) from 1 November 1965
Rent: £12
Remaining Years: 939
EPC Rating D
Council Tax £1,757.41
REFERRALFEES Hannon Holmes may refer you to ancillary services including Conveyancing, Surveying and Financial Services, should you require any of these services. Hannon Holmes may receive a referral fee for recommending their services if you do instruct them. You are free to select any provider of legal services, surveying or financial services that you choose and you are under no obligation to use any of the suggested providers.
PROPERTYPARTICULARSDISCLAIMER Property particulars as supplied by Hannon Holmes Estate Agents are set out as a general outline in accordance with the Property Misdescriptions Act (1991) only for the guidance of intending purchasers or lessees, and do not constitute any part of an offer or contract. Details are given without any responsibility, and any intending purchasers, lessees or third parties should not rely on them as statements or representations of fact, but must satisfy themselves by inspection or otherwise as to the correctness of each of them. We have not carried out a structural survey and the services, appliances and specific fittings have not been tested. All photographs, measurements, floor plans and distances referred to are given as a guide only and should not be relied upon for the purchase of carpets or any other fixtures or fittings. Gardens, roof terraces, balconies and communal gardens as well as tenure and lease details cannot have their accuracy guaranteed for intending purchasers. Lease details, service ground rent (where applicable) are given as a guide only and should be checked and confirmed by your solicitor prior to exchange of contracts. No person in the employment of Hannon Holmes Ltd has any authority to make any representation or warranty whatever in relation to this property. Purchase prices, rents or other prices quoted are correct at the date of publication and, unless otherwise stated, exclusive of VAT. TENURE : The type of tenure has been given to us by the seller. This has not been verified. The Agent has not checked the legal documents to verify the tenure status of the property. The buyer is advised to obtain verification from their Solicitor or Surveyor. For full Property Particulars Disclaimer please visit http://hannonholmes.co.uk/property-particulars-disclaimer.
Fees applying to all new tenancies from 1st June 2019
We may charge a tenant any or all of the following when required:
the rent;
a security deposit with a maximum of 5 weeks rent, or 6 weeks on a property with rent over £50,000 per year;
a holding deposit of no more than one weeks’ rent;
default fee for late payment of rent (after 14 days);
reasonable charges for lost keys or security fobs;
payments associated with contract variation, at £50 or reasonable costs incurred if higher, when requested by the tenant;
payments associated with early termination of the tenancy, when requested by the tenant; and
payments in respect of bills - utilities, communication services, TV licence, council tax and green deal or other energy efficiency charges.
Fees applying to all pre-existing tenancies entered before 1st June 2019
We shall continue to apply the charges within the existing tenancy agreement until 31st May 2020.
During Your Tenancy:
During your tenancy, there are fees that may apply depending on your circumstances and the various options you may select. All charges are inclusive of VAT:
The charges for the above are as follows:
Amendment fee £50.00 (Contract negotiation, amending terms and updating your tenancy agreement during your stay)
Renewal Fee £75.00 (Contract negotiation, amending and updating terms and arranging each further tenancy agreement be it fixed term of periodic. In the case you choose to go onto a periodic tenancy this is a one off payment)
Unpaid Rent / Returned Payments (Pay interest on any amounts of Rent due and in arrears at the rate of £4% above the Bank of England annual base rate calculated on a day to day basis from the date that the same become due until payment in full is made)
Professional cleaning (if required) – (£18.00 per hour with a minimum charge of £36.00 which will be deducted from the security deposit. Only charged when professional cleaning is necessary to return the property to the same condition as at the start of the tenancy)
If you have any questions on our fees, please ask a member of staff