Don’t miss out on this immaculate 3 Bedroom End Town House, beautifully presented throughout and ready to move straight into. Offering stylish and spacious living across three floors, this stunning home is perfect for modern family life. Contact the Sales Team today on 01204 793113 to arrange your viewing.
Misrepresentation Act 1967
These particulars are believed to be correct but their accuracy is not guaranteed nor do they form part of any contract.
For further details on this property please call us on:
01204 793113
STEPINSIDE Welcome to Fearney Side, where the property immediately impresses on arrival with its attractive front garden, bordered by a low perimeter hedge. A neatly maintained lawn and flagged pathway guide you to the front door, while a convenient side gate provides access through to the rear garden.
Upon entering, you are greeted by a beautiful and inviting hallway that sets the tone for the rest of the home. From here, there is access to a downstairs WC, a useful storage cupboard, the staircase to the first floor, as well as the kitchen and the spacious lounge diner. The cloakroom is thoughtfully designed, featuring a WC, wash basin, radiator, vinyl flooring, a ceiling light and a frosted double-glazed window.
To the rear of the property lies the stunning open-plan lounge and dining area, complete with a stylish feature media wall. This bright and spacious room offers a comfortable and versatile living space, finished with fitted carpet, one double radiator, ceiling lighting and additional downlighting above the dining area. There is also a useful under-stairs storage cupboard and French doors open directly onto the rear garden, allowing for plenty of natural light and seamless indoor-outdoor living. The room easily accommodates a range of lounge and dining furnishings to suit your lifestyle.
The kitchen is positioned to the front aspect of the property and is both bright and functional. It features a range of wall and base units complemented by work surfaces, along with a built-in electric oven and gas hob with an overhead extractor fan. There is plumbing for a washing machine, space for a dishwasher and a tall fridge/freezer, as well as a sink, partly tiled walls, vinyl flooring and a double-glazed window.
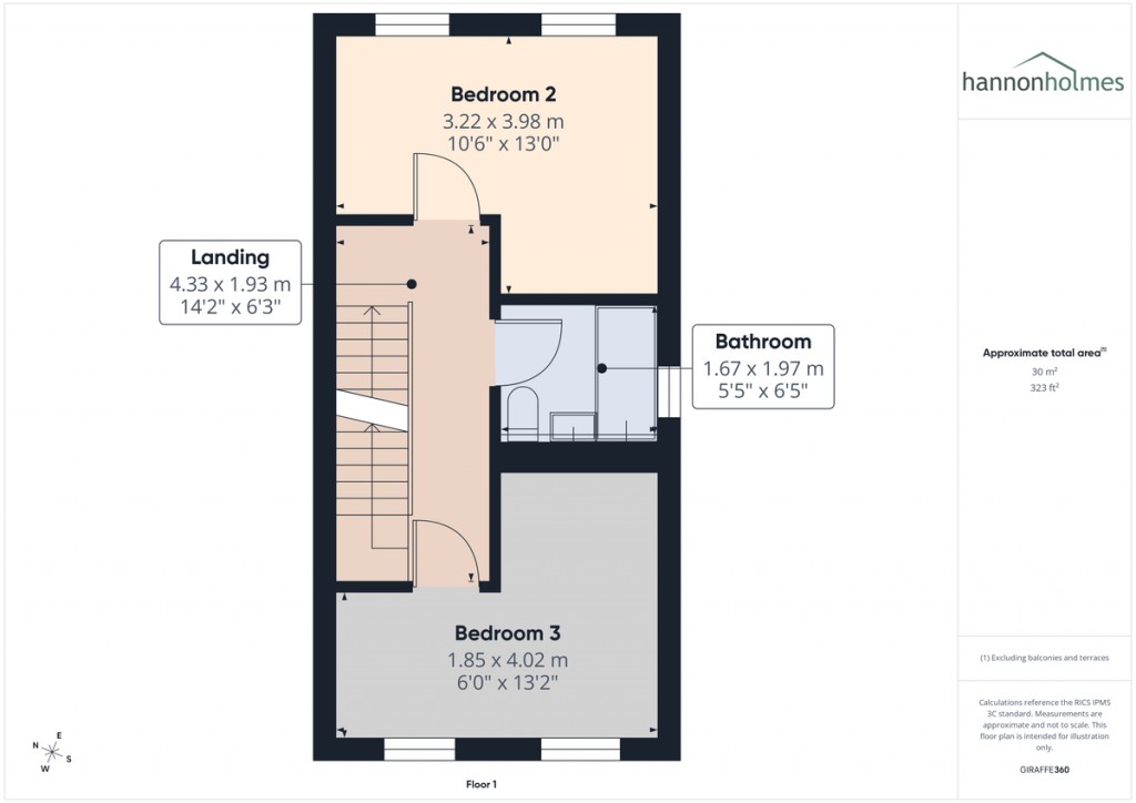
Ascending to the first floor, you will find two well-proportioned bedrooms and the family bathroom.
Bedroom two is located to the rear and benefits from laminate flooring, two radiators and two double-glazed windows that flood the room with natural light. It also includes built-in wardrobes with mirrored sliding doors.
Bedroom three is situated at the front, with laminate flooring, two radiators and two double-glazed windows. Currently utilised as a second reception room by the owners, this versatile space can easily be adapted to suit a variety of needs.
The family bathroom is positioned to the side aspect and comprises a bath with overhead shower, wash basin and WC. It is finished with vinyl flooring, partly tiled walls, a frosted double-glazed window, radiator, spotlights and a feature ledge ideal for decorative touches.
The top floor is dedicated to the impressive main bedroom, which provides a fantastic and spacious retreat. This room features laminate flooring, a ceiling light, radiator, a double-glazed window and a Velux window, along with a storage cupboard and ample space for bedroom furnishings. The en-suite is well-sized and includes a double shower cubicle, WC, wash basin, chrome wall-mounted radiator, vinyl flooring, Velux window and spotlights.
Externally, the rear garden offers a pleasant outdoor space to enjoy, with a lawn, flagged pathway and a fixed pergola, making it ideal for relaxing or entertaining. There is also access leading back to the front of the property.
Additionally, the property benefits from allocated off-road parking to the rear which are on the property deeds.
Further details of the property include a modern system boiler installed approximately 12 months ago and fully serviced, offering efficiency and reliability. The loft has been part-boarded and benefits from a fitted ladder and full insulation, providing useful additional storage space. The windows were newly installed in August 2023 and come with a 7-year warranty, as well as FENSA certification for added peace of mind.
LOCATION Located on Fearney Side in the popular area of Little Lever, this property benefits from a highly convenient position with a variety of local amenities and attractions nearby. Just a short walk away is Moses Gate Country Park, also known as Crompton Lodges, which features picturesque walks around the lodge, open green spaces, and a fantastic children's adventure park - perfect for families, dog walkers, and outdoor enthusiasts.
Within walking distance, you'll also find The Jolly Carter public house, offering food and live sports, making it an ideal spot for socialising or enjoying a casual meal locally. Families will value the close proximity to Bowness Primary School and Little Lever High School, ensuring a quick and stress-free school run for busy parents.
Everyday necessities are easily accessible, with a petrol station and convenience store located on the main road just off Fearney Side.
The property also benefits from excellent transport connections, with local bus routes providing direct links to Bolton, Radcliffe, and Farnworth, making commuting straightforward. For drivers, the A666 is a short distance away, offering easy access into Manchester.
ADDITIONALINFORMATION To conform with government Anti Money Laundering Regulations 2019, we are required to confirm the identity of all prospective buyers. We use the services of a third party, Thirdfort. There is a nominal charge of £30 + VAT £6.00 Total £36.00 for this** (per person), payable direct to Hannon Holmes Ltd. These fees are non- refundable. **An increased charge may be payable for overseas checks.
Please note, we are unable to issue a memorandum of sale until checks are complete. Please note it is a legal requirement that we obtain verified ID from purchasers before instructing a sale. Please also note we shall require proof of funds before we instruct the sale, together with your instructed solicitors.
Hannon Holmes may refer you to ancillary services including Conveyancing, Surveying and Financial Services, should you require any of these services. Hannon Holmes may receive a referral fee for recommending their services if you do instruct them. You are free to select any provider of legal services, surveying or financial services that you choose and you are under no obligation to use any of the suggested providers.
REFERRALFEES Hannon Holmes may refer you to ancillary services including Conveyancing, Surveying and Financial Services, should you require any of these services. Hannon Holmes may receive a referral fee for recommending their services if you do instruct them. You are free to select any provider of legal services, surveying or financial services that you choose and you are under no obligation to use any of the suggested providers.
PROPERTYPARTICULARSDISCLAIMER Property particulars as supplied by Hannon Holmes Estate Agents are set out as a general outline in accordance with the Property Misdescriptions Act (1991) only for the guidance of intending purchasers or lessees, and do not constitute any part of an offer or contract. Details are given without any responsibility, and any intending purchasers, lessees or third parties should not rely on them as statements or representations of fact, but must satisfy themselves by inspection or otherwise as to the correctness of each of them. We have not carried out a structural survey and the services, appliances and specific fittings have not been tested. All photographs, measurements, floor plans and distances referred to are given as a guide only and should not be relied upon for the purchase of carpets or any other fixtures or fittings. Gardens, roof terraces, balconies and communal gardens as well as tenure and lease details cannot have their accuracy guaranteed for intending purchasers. Lease details, service ground rent (where applicable) are given as a guide only and should be checked and confirmed by your solicitor prior to exchange of contracts. No person in the employment of Hannon Holmes Ltd has any authority to make any representation or warranty whatever in relation to this property. Purchase prices, rents or other prices quoted are correct at the date of publication and, unless otherwise stated, exclusive of VAT. TENURE : The type of tenure has been given to us by the seller. This has not been verified. The Agent has not checked the legal documents to verify the tenure status of the property. The buyer is advised to obtain verification from their Solicitor or Surveyor. For full Property Particulars Disclaimer please visit http://hannonholmes.co.uk/property-particulars-disclaimer.
Fees applying to all new tenancies from 1st June 2019
We may charge a tenant any or all of the following when required:
the rent;
a security deposit with a maximum of 5 weeks rent, or 6 weeks on a property with rent over £50,000 per year;
a holding deposit of no more than one weeks’ rent;
default fee for late payment of rent (after 14 days);
reasonable charges for lost keys or security fobs;
payments associated with contract variation, at £50 or reasonable costs incurred if higher, when requested by the tenant;
payments associated with early termination of the tenancy, when requested by the tenant; and
payments in respect of bills - utilities, communication services, TV licence, council tax and green deal or other energy efficiency charges.
Fees applying to all pre-existing tenancies entered before 1st June 2019
We shall continue to apply the charges within the existing tenancy agreement until 31st May 2020.
During Your Tenancy:
During your tenancy, there are fees that may apply depending on your circumstances and the various options you may select. All charges are inclusive of VAT:
The charges for the above are as follows:
Amendment fee £50.00 (Contract negotiation, amending terms and updating your tenancy agreement during your stay)
Renewal Fee £75.00 (Contract negotiation, amending and updating terms and arranging each further tenancy agreement be it fixed term of periodic. In the case you choose to go onto a periodic tenancy this is a one off payment)
Unpaid Rent / Returned Payments (Pay interest on any amounts of Rent due and in arrears at the rate of £4% above the Bank of England annual base rate calculated on a day to day basis from the date that the same become due until payment in full is made)
Professional cleaning (if required) – (£18.00 per hour with a minimum charge of £36.00 which will be deducted from the security deposit. Only charged when professional cleaning is necessary to return the property to the same condition as at the start of the tenancy)
If you have any questions on our fees, please ask a member of staff